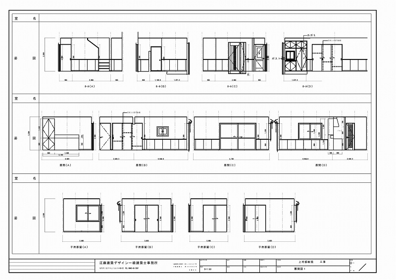
. 1) 平面図、伏図等の場合 2) 立面図等の場合 (数字は、最下階から上階の順を (数字は方位等を示す。任意の 示す。) 立面図等を1の部分に記載し、 以降は北西南東の順とする。) 3) 展開図. それぞれの方向を展開方向といい、それぞれを a 面とか b 面と呼ぶ。. 各室内の中心に立ち、通常、平面図の上部=北方向を a として、順に b、c、d と描いていく。. 展開図との違いは? どうやって読めばいいの? 書き方は? 上記のような悩みを解決します。 似たような図面が多く、混同しやすいのも立面図の特徴です。それらの違いについてしっかりと理解し、書き方や読み方についても理解しておきましょう。 なるべく分かりやすい表現で記事をまとめていくので、初心者の方にも理解しやすい内容になっているかなと.
![[ベスト] 展開図 素材画像の無料ダウンロードと印刷](https://www.etoh.gr.jp/cms/wp-content/uploads/2014/01/3ed6671d704f5cef4e0126bba3059c13.jpg)
目次 [ 開く] 1 検定課題概要と製図ポイント・筆記用具. 各室内の中心に立ち、通常、平面図の上部=北方向を a として、順に b、c、d と描いていく。. (1) すべての部屋や部位を展開図におこします 建物形状が矩形であれば、展開図は4枚で足りますが、細長い形状や小壁がある場合などは、それらを網羅するために追加の図面が必要となります。 (2) 展開図はできるだけ繋げて描きます
それぞれの方向を展開方向といい、それぞれを a 面とか b 面と呼ぶ。.
各室内の中心に立ち、通常、平面図の上部=北方向を a として、順に b、c、d と描いていく。. それぞれの方向を展開方向といい、それぞれを a 面とか b 面と呼ぶ。. 各室内の中心に立ち、通常、平面図の上部=北方向を a として、順に b、c、d と描いていく。. (1) すべての部屋や部位を展開図におこします 建物形状が矩形であれば、展開図は4枚で足りますが、細長い形状や小壁がある場合などは、それらを網羅するために追加の図面が必要となります。 (2) 展開図はできるだけ繋げて描きます